把一切不屬于生活的內容剔除得
干凈利落,把生活逼到絕處,
簡化成最基本的形式,
簡單,簡單,再簡單。
——梭羅《瓦爾登湖》



客廳寬敞明亮,
以黑白灰為主色調,
營造寧靜雅致的休憩氛圍,
在結束一天繁忙的工作后回到家中,
情緒也隨之被安撫舒展,
這個空間,有治愈的能力。



通透的玻璃可以一覽到辦公區書柜的樣貌,
素凈的黑白搭配、簡約的造型,
連接了客廳空間,與其更好的融合;
設計師用護墻將客廳和餐廳完美分割,
呈現出愜意的居家氛圍。




木,素樸潔凈、溫暖舒適,
石,沉穩內斂,高貴清冷,
木紋+石紋打造的櫥柜形成“柔”與“硬”的鮮明對比,
提升了時尚氣息,給空間帶來自然的觀照,
從冷靜清冽中散發出生機。

鋁框玻璃格柵移門線條簡單明朗,
融合了東方和現代的風格氣息,
以現代簡潔的設計語言給居住者創造了一個詩意的想象空間,
樹影綽綽、月圓花好。


步入式衣帽間整潔大方,
素雅的白色柜體在光影中隱約浮現著淡淡的石紋光澤,
低調的奢華中夾雜著對精致生活的品質考究;
黑色的玻璃門給空間帶來更多的美感,
材質與工藝齊驅,
無聲寂靜中把落落大方的品味鋪開,
獲得一種更高層次的享受。


衛浴室:
棕色的水磨石有穩重之感,
白色的石紋有自然的流動性和天然的紋理,自然純正,
兩者融合,使空間不乏潺潺流動的靈韻之美,
增強了空間感更無限提升了時尚氣息。


臥室簡約卻不失精致,
大理石紋的床頭柜和個性的床前燈,
都彰顯著居住者的個性和品位;
暖色光的渲染讓空間顯得溫馨舒適,
擁有了優雅精煉的小資情調,
以享受生活真切的美好。
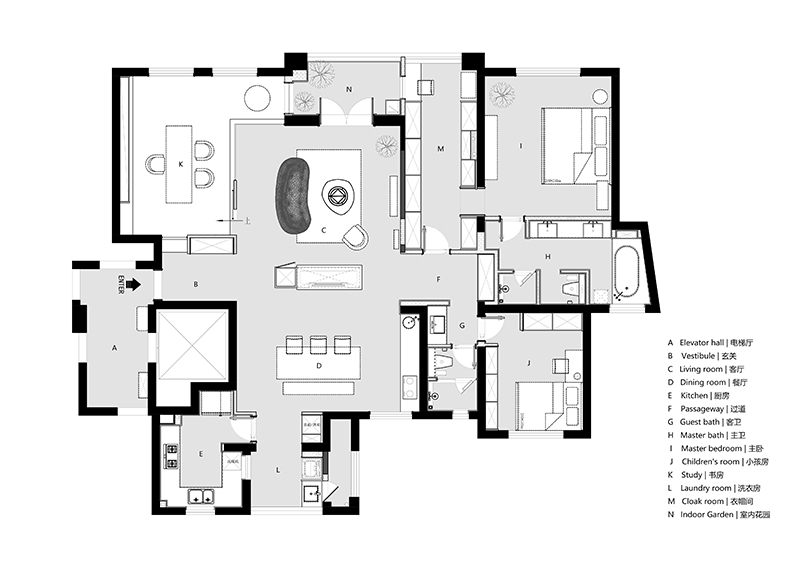
[平面規劃圖]
